
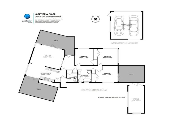
6 Olympia Place, Riverlea, Hamilton, 3216 is a Residential property built in 1967 with 3 bedrooms, 1 bathroom and 2 parking spaces. The property is estimated to be valued in the range of $800,000 to $900,000.
The property last sold on 17 August 2023 for $882,000. It was sold by Lugtons Ltd, (Licensed: Reaa 2008), and took 10 days to sell. On 1 September 2024, 6 Olympia Place, Riverlea, Hamilton, 3216 had a Rating Valuation with a Capital Value of $860,000, Land Value of $470,000 and Improvement Value of $390,000.
| Date | Type | Price | Agent/Agency |
|---|---|---|---|
| 17 Aug 2023 | SOLD | $882,000 | |
| 8 Aug 2023 | ASKING PRICE | $849,000 | Del Bredesen of Lugtons Ltd, (Licensed: Reaa 2008) |
| 12 Aug 2020 | SOLD | $750,000 | Brendon O’Reilly of Lodge Real Estate (Hamilton) Ltd Rototuna Licensed: Reaa 2008 |
| 24 Jul 2020 | AUCTION | Price Not Disclosed | Sean O'Reilly of Lodge Real Estate, (Licensed: Reaa 2008) |
| 20 Dec 2016 | SOLD | $657,500 | |
| 24 Nov 2016 | ASKING PRICE | Price Not Disclosed | |
| 26 Jan 2006 | SOLD | $330,000 | Rosaline Clark of Harcourts Monarch Real Estate Ltd |
| 21 Nov 2005 | AUCTION | Price Not Disclosed | Rosaline Clark of Harcourts Monarch Real Estate Ltd |
| 31 Oct 2003 | SOLD | $187,500 |
Lot 32 Deposited Plan South Auckland 10584
There are no similar properties in the area that are listed for sale or recently sold.