
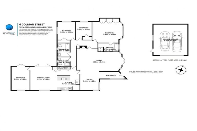
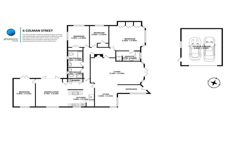
6 Colman Street, Queenwood, Hamilton, 3210 is a Residential property built in 1966 with 4 bedrooms, 3 bathrooms and 2 parking spaces. The property is estimated to be valued in the range of $1,600,000 to $1,800,000.
It is unknown when the property was last sold or how much it was sold for. On 1 September 2024, 6 Colman Street, Queenwood, Hamilton, 3210 had a Rating Valuation with a Capital Value of $1,725,000, Land Value of $1,375,000 and Improvement Value of $350,000.
| Date | Type | Price | Agent/Agency |
|---|---|---|---|
| 24 Mar 2021 | SOLD | $1,875,000 | Jack Ramasamy of Lugtons Ltd |
| 4 Mar 2021 | AUCTION | Price Not Disclosed | Jack Ramasamy of Lugtons Ltd |
| 5 Mar 2015 | SOLD | $740,000 | Dunn John of Monarch Real Estate Ltd Harcourts, Chartwell |
| 17 Dec 2014 | ASKING PRICE | Price Not Disclosed | Dunn John of Monarch Real Estate Ltd Harcourts, Chartwell |
| 4 Dec 2002 | SOLD | $378,000 | Richard Lindsay of Lodge Real Estate Hamilton |
| 27 Nov 2002 | AUCTION | Price Not Disclosed | Richard Lindsay of Lodge Real Estate Hamilton |
| 18 Oct 1991 | SOLD | $220,000 | |
| 15 Dec 1986 | SOLD | $25,000 |
Lot 1-2 Deposited Plan South Auckland 45309 and Lot 88 Deposited Plan South Auckland 4127
There are no similar properties in the area that are listed for sale or recently sold.