
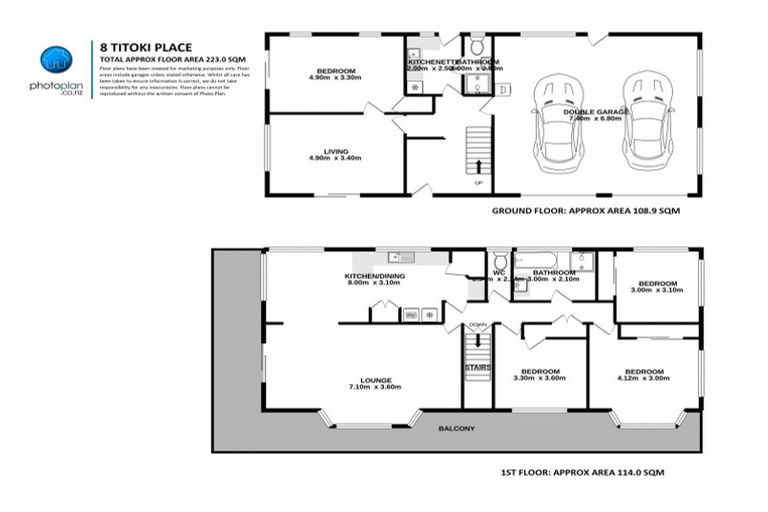
8 Titoki Place, Pukete, Hamilton, 3200 is a Residential property built in 1980 with 4 bedrooms, 2 bathrooms and 2 parking spaces. The property is estimated to be valued in the range of $900,000 to $1,000,000.
The property last sold on 8 October 2024 for $958,000. It was sold by Lodge Real Estate. On 1 September 2024, 8 Titoki Place, Pukete, Hamilton, 3200 had a Rating Valuation with a Capital Value of $910,000, Land Value of $580,000 and Improvement Value of $330,000.
| Date | Type | Price | Agent/Agency |
|---|---|---|---|
| 8 Oct 2024 | SOLD | $958,000 | |
| 5 Oct 2024 | BY NEGOTIATION | Price Not Disclosed | Eric Chang of Monarch Real Estate Ltd Hamilton, (Licensed: Reaa 2008) |
| 2 Jul 2020 | SOLD | $772,000 | Jeff Lackey of Lugtons Limited, (Licensed: Reaa 2008) |
| 25 Jun 2020 | ASKING PRICE | $789,000 | Jeff Lackey of Lugtons Limited, (Licensed: Reaa 2008) |
| 31 Mar 2009 | SOLD | $401,000 | Ken Lusby of Ray White Online Realty Ltd |
| 7 Mar 2009 | ASKING PRICE | Price Not Disclosed | Ken Lusby of Ray White Online Realty Ltd |
| 28 Jul 2007 | DEADLINE PRIVATE TREATY | $479,000 | Ian Barnsdall of Harcourts Monarch Real Estate Ltd |
| 3 Nov 1980 | SOLD | $13,250 |
Lot 18 Deposited Plan South Auckland 24609
There are no similar properties in the area that are listed for sale or recently sold.