
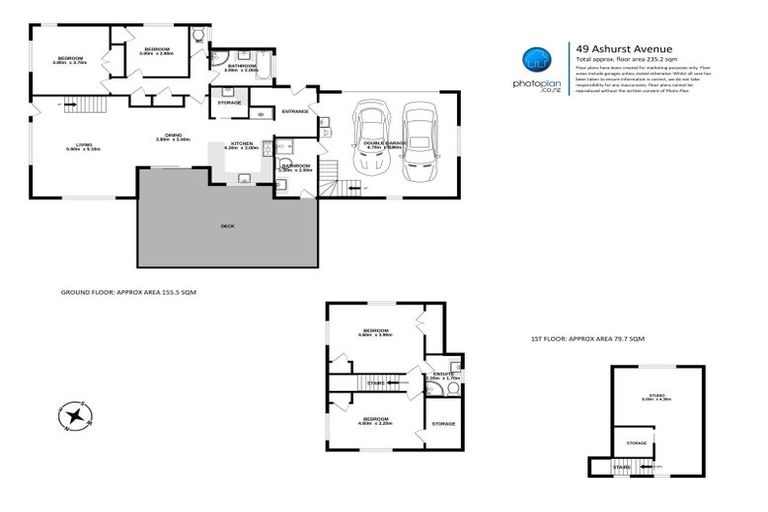
49 Ashurst Avenue, Pukete, Hamilton, 3200 is a Residential property built in 1990 with 4 bedrooms, 3 bathrooms and 2 parking spaces. The property is estimated to be valued in the range of $1,000,000 to $1,100,000.
The property last sold on 20 March 2024 for $978,000. It was sold by Lugtons Limited, (Licensed: Reaa 2008), and took 22 days to sell. On 1 September 2024, 49 Ashurst Avenue, Pukete, Hamilton, 3200 had a Rating Valuation with a Capital Value of $960,000, Land Value of $530,000 and Improvement Value of $430,000.
| Date | Type | Price | Agent/Agency |
|---|---|---|---|
| 20 Mar 2024 | SOLD | $978,000 | |
| 28 Feb 2024 | ASKING PRICE | $990,000 | Corinna Findlay of Lugtons Limited, (Licensed: Reaa 2008) |
| 22 Sep 2008 | SOLD | $365,000 | Susan Taylor of Harcourts Monarch Real Estate Ltd |
| 23 May 2008 | DEADLINE PRIVATE TREATY | $385,000 | Susan Taylor of Harcourts Monarch Real Estate Ltd |
| 7 Nov 2004 | SOLD | $285,000 | |
| 15 Nov 1990 | SOLD | $145,000 | |
| 20 Jul 1989 | SOLD | $32,250 |
Lot 23 Deposited Plan South Auckland 50812
There are no similar properties in the area that are listed for sale or recently sold.