
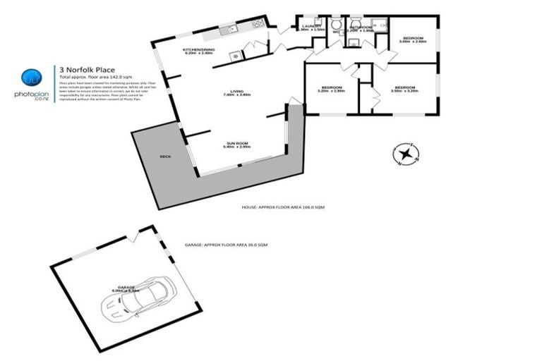
3 Norfolk Place, Pukete, Hamilton, 3200 is a Residential property built in 1976 with 3 bedrooms, 1 bathroom and 1 parking space. The property is estimated to be valued in the range of $700,000 to $750,000.
The property last sold on 31 May 1993 for $104,000. On 1 September 2024, 3 Norfolk Place, Pukete, Hamilton, 3200 had a Rating Valuation with a Capital Value of $690,000, Land Value of $490,000 and Improvement Value of $200,000.
| Date | Type | Price | Agent/Agency |
|---|---|---|---|
| 14 Jan 2026 | Rented | $575 | Imogen Green of Lugtons Real Estate Rentals, (Licensed: Reaa 2008) |
| 14 Apr 2024 | Rented | $575 | Imogen Green of Lugtons Real Estate Rentals, (Licensed: Reaa 2008) |
| 24 Jan 2024 | ASKING PRICE | $725,000 | Josh Prouse of Lugtons Limited, (Licensed: Reaa 2008) |
| 31 May 1993 | SOLD | $104,000 |
Lot 49 Deposited Plan South Auckland 22683
There are no similar properties in the area that are listed for sale or recently sold.