
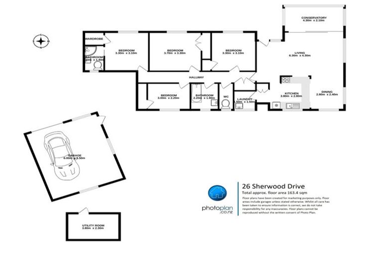
26 Sherwood Drive, Pukete, Hamilton, 3200 is a Residential property built in 1970 with 4 bedrooms, 2 bathrooms and 1 parking space. The property is estimated to be valued in the range of $800,000 to $900,000.
The property last sold on 12 June 2025 for $775,000. It was sold by Monarch Real Estate Ltd Hamilton, (Licensed: Reaa 2008), and took 17 days to sell. On 1 September 2024, 26 Sherwood Drive, Pukete, Hamilton, 3200 had a Rating Valuation with a Capital Value of $720,000, Land Value of $520,000 and Improvement Value of $200,000.
| Date | Type | Price | Agent/Agency |
|---|---|---|---|
| 12 Jun 2025 | SOLD | $775,000 | |
| 27 May 2025 | ASKING PRICE | $799,000 | Lisa Sigley of Monarch Real Estate Ltd Hamilton, (Licensed: Reaa 2008) |
| 29 Apr 2019 | SOLD | $550,000 | |
| 31 Jan 2019 | ASKING PRICE | $579,000 | Tony Kerapa of Monarch Real Estate Ltd Harcourts, Glenview Licensed: Reaa 2008 |
| 10 Dec 2003 | SOLD | $195,000 | John Baker of Ray White Hamilton |
| 5 Nov 2003 | AUCTION | Price Not Disclosed | John Baker of Ray White Hamilton |
| 7 Oct 1998 | SOLD | $155,000 | |
| 15 Feb 1987 | SOLD | $77,000 |
Lot 21 Deposited Plan South Auckland 17747
There are no similar properties in the area that are listed for sale or recently sold.