
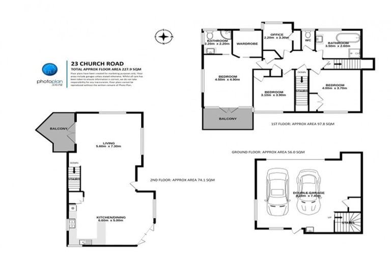
23 Church Road, Pukete, Hamilton, 3200 is a Residential property built in 1995 with 3 bedrooms, 2 bathrooms and 3 parking spaces. The property is estimated to be valued in the range of $800,000 to $900,000.
The property last sold on 23 February 2021 for $832,000. It was sold by Lugtons Ltd, and took 6 days to sell. On 1 September 2024, 23 Church Road, Pukete, Hamilton, 3200 had a Rating Valuation with a Capital Value of $840,000, Land Value of $510,000 and Improvement Value of $330,000.
| Date | Type | Price | Agent/Agency |
|---|---|---|---|
| 23 Feb 2021 | SOLD | $832,000 | Lisa Sigley of Lugtons Ltd |
| 18 Feb 2021 | ASKING PRICE | $849,000 | Lisa Sigley of Lugtons Ltd |
| 3 Jul 2002 | SOLD | $275,000 | |
| 5 Jun 1997 | SOLD | $38,000 |
Lot 10 Deposited Plan South Auckland 69277
There are no similar properties in the area that are listed for sale or recently sold.