
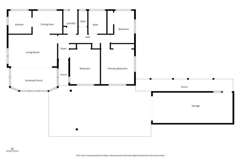
17 Matipo Crescent, Pukete, Hamilton, 3200 is a Residential property built in 1980 with 3 bedrooms, 1 bathroom and 3 parking spaces. The property is estimated to be valued in the range of $750,000 to $800,000.
It is unknown when the property was last sold or how much it was sold for. On 1 September 2024, 17 Matipo Crescent, Pukete, Hamilton, 3200 had a Rating Valuation with a Capital Value of $740,000, Land Value of $475,000 and Improvement Value of $265,000.
| Date | Type | Price | Agent/Agency |
|---|---|---|---|
| 4 Feb 2026 | BY NEGOTIATION | Price Not Disclosed | Aman Sadhra of Lugtons Chartwell (River Road) Ltd, (Licensed: Reaa 2008) |
| 24 Mar 2025 | Rented | $590 | Tina Martin of Ultimate Global Properties Ltd |
| 29 Jul 2023 | Rented | $590 | Juky Steenberg of Ultimate Properties Waikato Ltd, (Licensed: Reaa 2008) |
| 17 May 2023 | ASKING PRICE | $649,000 | Blair Pointon of Lodge Real Estate, (Licensed: Reaa 2008) |
| 5 Aug 2001 | SOLD | $150,000 | |
| 12 Mar 1982 | SOLD | $47,000 |
Lot 20 Deposited Plan South Auckland 28124
There are no similar properties in the area that are listed for sale or recently sold.