
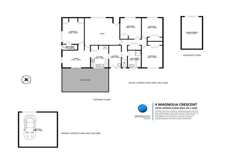
4 Magnolia Crescent, Nawton, Hamilton, 3200 is a Residential property built in 1975 with 4 bedrooms, 2 bathrooms and 2 parking spaces. The property is estimated to be valued in the range of $700,000 to $750,000.
The property last sold on 23 March 2023 for $700,000. It was sold by Lugtons Limited, (Licensed: Reaa 2008), and took 7 days to sell. On 1 September 2024, 4 Magnolia Crescent, Nawton, Hamilton, 3200 had a Rating Valuation with a Capital Value of $700,000, Land Value of $415,000 and Improvement Value of $285,000.
| Date | Type | Price | Agent/Agency |
|---|---|---|---|
| 23 Mar 2023 | SOLD | $700,000 | Babak Paymani of Lugtons Limited, (Licensed: Reaa 2008) |
| 17 Mar 2023 | BY NEGOTIATION | Price Not Disclosed | Babak Paymani of Lugtons Limited, (Licensed: Reaa 2008) |
| 14 May 2012 | ASKING PRICE | $387,308 | Alan Hulme of Milestone Homes |
| 9 Dec 2006 | SOLD | $325,000 | Cheryl Bull of Harcourts Monarch Real Estate Ltd |
| 23 Sep 2006 | DEADLINE PRIVATE TREATY | $329,000 | Cheryl Bull of Harcourts Monarch Real Estate Ltd |
| 24 Nov 1997 | SOLD | $187,000 |
Lot 5 Deposited Plan South Auckland 19981
There are no similar properties in the area that are listed for sale or recently sold.