
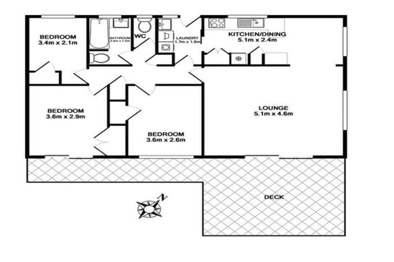
26b Blomfield Street, Nawton, Hamilton, 3200 is a Residential property built in 1982 with 3 bedrooms, 1 bathroom and 1 parking space. The property is estimated to be valued in the range of $600,000 to $650,000.
The property last sold on 12 June 2019 for $454,000. It was sold by Lugtons Ltd, (Licensed: Reaa 2008), and took 7 days to sell. On 1 September 2024, 26b Blomfield Street, Nawton, Hamilton, 3200 had a Rating Valuation with a Capital Value of $600,000, Land Value of $325,000 and Improvement Value of $275,000.
| Date | Type | Price | Agent/Agency |
|---|---|---|---|
| 28 Mar 2022 | Rented | $570 | Sharon Smith of Waikato Real Estate, (Licensed: Reaa 2008) |
| 17 Feb 2021 | Rented | $540 | Sharon Smith of Waikato Real Estate, (Licensed: Reaa 2008) |
| 5 Aug 2019 | Rented | $480 | Ben Roberts of Waikato Real Estate, (Licensed: Reaa 2008) |
| 12 Jun 2019 | SOLD | $454,000 | Melissa Wilton of Lugtons Ltd, (Licensed: Reaa 2008) |
| 6 Jun 2019 | ASKING PRICE | $459,000 | Melissa Wilton of Lugtons Ltd, (Licensed: Reaa 2008) |
| 30 Jun 2017 | SOLD | $400,000 | |
| 15 Sep 2016 | ASKING PRICE | $389,000 | Adi Roebuck of Lodge Real Estate Ltd |
| 13 Jun 2015 | SOLD | $256,250 | |
| 29 Mar 2013 | SOLD | $220,000 | Craig Annandale of Lugtons Real Estate Ltd |
| 20 Feb 2013 | ASKING PRICE | $229,000 | Craig Annandale of Lugtons Real Estate Ltd |
Lot 25 Deposited Plan South Auckland 24250
There are no similar properties in the area that are listed for sale or recently sold.