
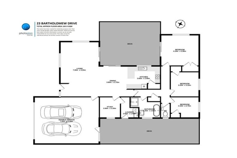
23 Bartholomew Drive, Nawton, Hamilton, 3200 is a Residential property built in 1991 with 3 bedrooms, 1 bathroom and 2 parking spaces. The property is estimated to be valued in the range of $750,000 to $800,000.
The property last sold on 1 September 2023 for $758,500. It was sold by Lugtons Ltd, (Licensed: Reaa 2008). On 1 September 2024, 23 Bartholomew Drive, Nawton, Hamilton, 3200 had a Rating Valuation with a Capital Value of $760,000, Land Value of $380,000 and Improvement Value of $380,000.
| Date | Type | Price | Agent/Agency |
|---|---|---|---|
| 1 Sep 2023 | SOLD | $758,500 | |
| 18 Aug 2023 | ASKING PRICE | $759,000 | |
| 24 Jan 2017 | SOLD | $522,000 | |
| 27 May 2007 | SOLD | $346,000 | Bernice Savage of Lodge Real Estate |
| 12 May 2007 | DEADLINE PRIVATE TREATY | $349,000 | Bernice Savage of Lodge Real Estate |
| 1 Jun 1999 | SOLD | $177,500 | |
| 29 Apr 1997 | SOLD | $175,000 |
Lot 15 Deposited Plan South Auckland 58975
There are no similar properties in the area that are listed for sale or recently sold.