
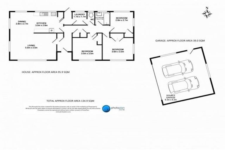
16 Lugton Street, Nawton, Hamilton, 3200 is a Residential property built in 1968 with 3 bedrooms, 1 bathroom and 2 parking spaces. The property is estimated to be valued in the range of $700,000 to $750,000.
The property last sold on 26 October 2020 for $639,000. It was sold by Lugtons Ltd, (Licensed: Reaa 2008), and took 5 days to sell. On 1 September 2024, 16 Lugton Street, Nawton, Hamilton, 3200 had a Rating Valuation with a Capital Value of $720,000, Land Value of $490,000 and Improvement Value of $230,000.
| Date | Type | Price | Agent/Agency |
|---|---|---|---|
| 26 Oct 2020 | SOLD | $639,000 | Jack Ramasamy of Lugtons Ltd, (Licensed: Reaa 2008) |
| 22 Oct 2020 | BY NEGOTIATION | Price Not Disclosed | Jack Ramasamy of Lugtons Ltd, (Licensed: Reaa 2008) |
| 13 Oct 2020 | Rented | $450 | Reception of Quinovic Hamilton |
| 1 Jun 2016 | SOLD | $472,000 | Chip Humble of Lugton's Ltd Hamilton North |
| 18 May 2016 | AUCTION | Price Not Disclosed | Chip Humble of Lugton's Ltd Hamilton North |
| 12 Oct 2015 | ASKING PRICE | $389,000 | |
| 1 Dec 2012 | SOLD | $262,000 | |
| 24 Jun 2006 | SOLD | $265,000 | Trevor Palmer of Harcourts Monarch Real Estate Ltd |
| 9 Jun 2006 | DEADLINE PRIVATE TREATY | $269,000 | Trevor Palmer of Harcourts Monarch Real Estate Ltd |
| 24 Mar 1996 | SOLD | $132,000 |
Lot 28 Deposited Plan South Auckland 12685
There are no similar properties in the area that are listed for sale or recently sold.