
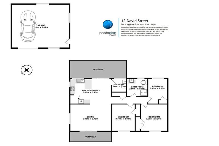
12 David Street, Nawton, Hamilton, 3200 is a Residential property built in 1983 with 3 bedrooms, 1 bathroom and 1 parking space. The property is estimated to be valued in the range of $550,000 to $600,000.
The property last sold on 22 September 2025 for $685,000. It was sold by Harcourts Hamilton Central City. On 1 September 2024, 12 David Street, Nawton, Hamilton, 3200 had a Rating Valuation with a Capital Value of $580,000, Land Value of $380,000 and Improvement Value of $200,000.
| Date | Type | Price | Agent/Agency |
|---|---|---|---|
| 22 Sep 2025 | SOLD | $685,000 | |
| 15 Sep 2025 | ASKING PRICE | $699,000 | Lisa Sigley of Monarch Real Estate Ltd Hamilton, (Licensed: Reaa 2008) |
| 10 Mar 2015 | DEADLINE PRIVATE TREATY | $299,000 | McGall Dave of Monarch Real Estate Ltd Harcourts, Rototuna |
| 26 Jul 1991 | SOLD | $96,000 |
Lot 10 Deposited Plan South Auckland 32339
There are no similar properties in the area that are listed for sale or recently sold.