
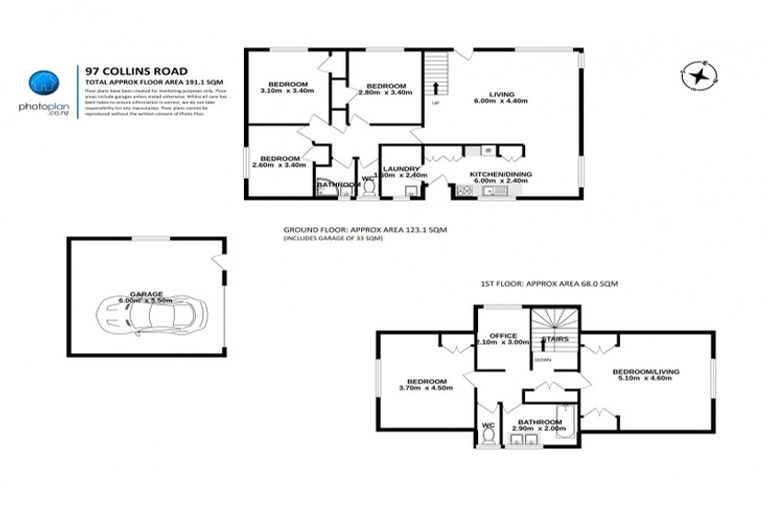
97 Collins Road, Melville, Hamilton, 3206 is a Residential property built in 1971 with 5 bedrooms, 2 bathrooms and 1 parking space. The property is estimated to be valued in the range of $800,000 to $900,000.
The property last sold on 20 November 2020 for $760,000. On 1 September 2024, 97 Collins Road, Melville, Hamilton, 3206 had a Rating Valuation with a Capital Value of $830,000, Land Value of $375,000 and Improvement Value of $455,000.
| Date | Type | Price | Agent/Agency |
|---|---|---|---|
| 20 Nov 2020 | SOLD | $760,000 | |
| 21 May 2010 | SOLD | $269,000 | Lou Camenzind of Century 21 George Boyes & Co |
| 19 Jan 2010 | DEADLINE PRIVATE TREATY | $310,000 | Lou Camenzind of Century 21 George Boyes & Co |
| 3 Sep 2008 | SOLD | $305,000 | |
| 1 Jan 2000 | SOLD | $169,000 |
Lot 103 Deposited Plan South Auckland 15549
There are no similar properties in the area that are listed for sale or recently sold.