
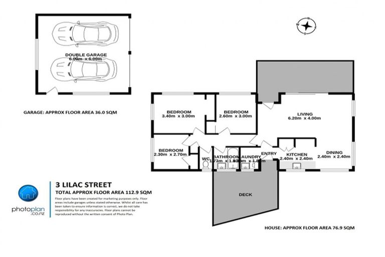
3 Lilac Street, Melville, Hamilton, 3206 is a Residential property built in 1972 with 3 bedrooms, 1 bathroom and 2 parking spaces. The property is estimated to be valued in the range of $600,000 to $650,000.
The property last sold on 19 March 2007 for $279,000. It was sold by Lodge Real Estate, and took 13 days to sell. On 1 September 2024, 3 Lilac Street, Melville, Hamilton, 3206 had a Rating Valuation with a Capital Value of $630,000, Land Value of $380,000 and Improvement Value of $250,000.
| Date | Type | Price | Agent/Agency |
|---|---|---|---|
| 30 Oct 2025 | Rented | $580 | Callum Holyoake of Otium Property Group |
| 19 Nov 2024 | Rented | $600 | Callum Holyoake of Otium Property Group |
| 8 Nov 2022 | Rented | $570 | Erin Dasler of Fahey Property Management Limited |
| 26 Mar 2021 | Rented | $530 | Erin Dasler of Fahey Property Management Limited |
| 8 Oct 2020 | Rented | $520 | |
| 14 Jul 2020 | DEADLINE PRIVATE TREATY | Price Not Disclosed | Lisa Sigley of Lugtons Ltd, (Licensed: Reaa 2008) |
| 27 Jul 2011 | MORTGAGEE SALE | Price Not Disclosed | Lynn Eagar of Ray White Online Realty |
| 19 Mar 2007 | SOLD | $279,000 | Hamish Gordon of Lodge Real Estate |
| 7 Mar 2007 | DEADLINE PRIVATE TREATY | $285,000 | Hamish Gordon of Lodge Real Estate |
| 16 Mar 2003 | SOLD | $137,000 | |
| 28 Jan 2000 | SOLD | $120,000 | |
| 23 Jul 1982 | SOLD | $47,000 | |
| 23 Feb 1981 | SOLD | $34,500 |
Lot 3 Deposited Plan South Auckland 15420
There are no similar properties in the area that are listed for sale or recently sold.