
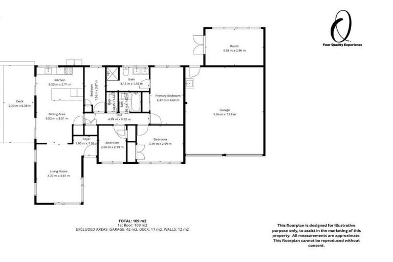
16 Thornton Place, Melville, Hamilton, 3206 is a Residential property built in 1964 with 4 bedrooms, 2 bathrooms and 2 parking spaces. The property is estimated to be valued in the range of $750,000 to $800,000.
The property last sold on 2 March 2026 for $795,000. It was sold by Lugtons Limited, (Licensed: Reaa 2008). On 1 September 2024, 16 Thornton Place, Melville, Hamilton, 3206 had a Rating Valuation with a Capital Value of $700,000, Land Value of $410,000 and Improvement Value of $290,000.
| Date | Type | Price | Agent/Agency |
|---|---|---|---|
| 2 Mar 2026 | SOLD | $795,000 | Q Lu of Lugtons Limited, (Licensed: Reaa 2008) |
| 16 Jan 2026 | BY NEGOTIATION | Price Not Disclosed | |
| 23 Oct 2025 | SOLD | $601,000 | |
| 6 Oct 2025 | ASKING PRICE | Price Not Disclosed | Gaurav Puri of Monarch Real Estate Ltd, (Licensed: Reaa 2008) |
| 26 Aug 2022 | Rented | $540 | Imogen Green of Waikato Real Estate |
| 1 Dec 2020 | Rented | $490 | Ksenia Kruchkina of Waikato Real Estate, (Licensed: Reaa 2008) |
| 17 Jan 2020 | Rented | $470 | Ksenia Kruchkina of Waikato Real Estate, (Licensed: Reaa 2008) |
| 15 Nov 2018 | SOLD | $442,000 | |
| 23 Oct 2018 | AUCTION | Price Not Disclosed | Tony Kerapa of Monarch Real Estate Ltd Glenview, (Licensed: Reaa 2008) |
| 11 Mar 1999 | SOLD | $140,000 | |
| 12 Mar 1988 | SOLD | $76,000 | |
| 15 Oct 1986 | SOLD | $73,500 | |
| 15 Mar 1981 | SOLD | $47,000 |
Lot 12 Deposited Plan South Auckland 9010
There are no similar properties in the area that are listed for sale or recently sold.