
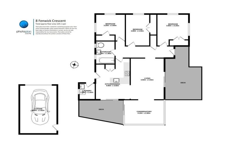
8 Fenwick Crescent, Hillcrest, Hamilton, 3216 is a Residential property built in 1962 with 3 bedrooms, 1 bathroom and 1 parking space. The property is estimated to be valued in the range of $650,000 to $700,000.
The property last sold on 12 June 2025 for $670,000. It was sold by Harcourts Hamilton Hillcrest. On 1 September 2024, 8 Fenwick Crescent, Hillcrest, Hamilton, 3216 had a Rating Valuation with a Capital Value of $600,000, Land Value of $365,000 and Improvement Value of $235,000.
| Date | Type | Price | Agent/Agency |
|---|---|---|---|
| 12 Jun 2025 | SOLD | $670,000 | |
| 17 Dec 2024 | SOLD | $575,000 | |
| 10 Dec 2024 | ASKING PRICE | $679,000 | Michelle Haman of Monarch Real Estate Ltd Hillcrest, (Licensed: Reaa 2008) |
| 19 Sep 2024 | Rented | $580 | |
| 10 Dec 2009 | SOLD | $285,000 | Ed Franklin of Harcourts Monarch Real Estate |
| 30 Aug 2009 | DEADLINE PRIVATE TREATY | $295,000 | Ed Franklin of Harcourts Monarch Real Estate |
| 23 Nov 2006 | SOLD | $280,000 | |
| 14 Mar 2003 | SOLD | $155,000 | |
| 12 Sep 1994 | SOLD | $117,000 |
Lot 64 Deposited Plan South Auckland 6559
There are no similar properties in the area that are listed for sale or recently sold.