
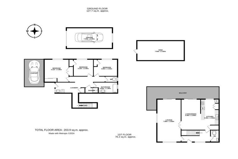
13 Mcgregor Place, Hillcrest, Hamilton, 3216 is a Residential property built in 1962 with 3 bedrooms, 1 bathroom and 3 parking spaces. The property is estimated to be valued in the range of $800,000 to $900,000.
The property last sold on 24 June 2008 for $325,000. On 1 September 2024, 13 Mcgregor Place, Hillcrest, Hamilton, 3216 had a Rating Valuation with a Capital Value of $920,000, Land Value of $720,000 and Improvement Value of $200,000.
| Date | Type | Price | Agent/Agency |
|---|---|---|---|
| 11 Jan 2024 | DEADLINE PRIVATE TREATY | Price Not Disclosed | Heather Whyte of Lugtons Limited, (Licensed: Reaa 2008) |
| 24 Jun 2008 | SOLD | $325,000 | |
| 15 May 1990 | SOLD | $131,000 | |
| 20 Dec 1982 | SOLD | $70,000 |
Lot 12 Deposited Plan South Auckland 7095
There are no similar properties in the area that are listed for sale or recently sold.