
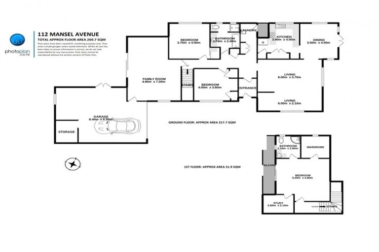
112 Mansel Avenue, Hillcrest, Hamilton, 3216 is a Residential property built in 1910 with 3 bedrooms, 2 bathrooms and 2 parking spaces. The property is estimated to be valued in the range of $1,200,000 to $1,300,000.
The property last sold on 17 February 2021 for $1,170,000. It was sold by Lugtons Limited, and took 27 days to sell. On 1 September 2024, 112 Mansel Avenue, Hillcrest, Hamilton, 3216 had a Rating Valuation with a Capital Value of $1,175,000, Land Value of $810,000 and Improvement Value of $365,000.
| Date | Type | Price | Agent/Agency |
|---|---|---|---|
| 27 Jan 2022 | Rented | $580 | Sahana Nelliyat of Climber Property Ltd |
| 19 Apr 2021 | Rented | $580 | Chris Chen of Gralin Property Management Ltd |
| 17 Feb 2021 | SOLD | $1,170,000 | Terry Ryan of Lugtons Limited |
| 22 Jan 2021 | AUCTION | Price Not Disclosed | Terry Ryan of Lugtons Limited |
| 7 Aug 2014 | SOLD | $528,000 | |
| 2 Aug 2014 | ASKING PRICE | Price Not Disclosed | |
| 15 May 1985 | SOLD | $155,000 |
Lot 4 Deposited Plan South Auckland 5854
There are no similar properties in the area that are listed for sale or recently sold.