
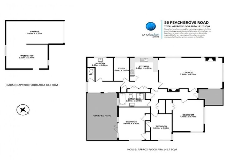
56 Peachgrove Road, Hamilton East, Hamilton, 3216 is a Residential property built in 1959 with 3 bedrooms, 1 bathroom and 1 parking space. The property is estimated to be valued in the range of $900,000 to $1,000,000.
The property last sold on 11 November 2021 for $1,101,500. It was sold by Harcourts Hamilton Hillcrest. On 1 September 2024, 56 Peachgrove Road, Hamilton East, Hamilton, 3216 had a Rating Valuation with a Capital Value of $860,000, Land Value of $680,000 and Improvement Value of $180,000.
| Date | Type | Price | Agent/Agency |
|---|---|---|---|
| 9 Apr 2026 | BY NEGOTIATION | Price Not Disclosed | Vicky Yang of Monarch Real Estate Ltd, (Licensed: Reaa 2008) |
| 16 May 2025 | Rented | $580 | Faye - Utrust Property Management of Utrust Property Rental Management |
| 18 Oct 2024 | ASKING PRICE | $965,000 | Young Yang of Monarch Real Estate Ltd, (Licensed: Reaa 2008) |
| 25 Jan 2024 | BY NEGOTIATION | Price Not Disclosed | Alan Pracy of Colliers, Hamilton, Commercial Property Solutions Ltd, (Licensed: Reaa 2008) |
| 27 Jun 2023 | Rented | $550 | Fiona- Utrust Property Management of Utrust Property Rental Management |
| 27 Jul 2022 | Rented | $550 | Erin Huang of Utrust Property Rental Management |
| 11 May 2022 | ASKING PRICE | $1,095,000 | Tony Tang of Lodge Real Estate |
| 11 Nov 2021 | SOLD | $1,101,500 | Young Yang of Harcourts Hamilton Hillcrest |
| 11 Nov 2021 | ASKING PRICE | $1,200,000 | Fraser Kilgour of Lugtons Limited, (Licensed: Reaa 2008) |
| 29 Nov 2018 | SOLD | $622,000 | Tony Tang of Lodge Real Estate Ltd, (Licensed: Reaa 2008) |
| 7 Nov 2018 | AUCTION | Price Not Disclosed | Tony Tang of Lodge Real Estate Ltd, (Licensed: Reaa 2008) |
| 21 Mar 2014 | SOLD | $378,000 | |
| 17 Feb 2014 | ASKING PRICE | $390,000 | |
| 14 Dec 1995 | SOLD | $153,000 | |
| 15 Nov 1989 | SOLD | $100,000 |
Lot 1 Deposited Plan 37412
There are no similar properties in the area that are listed for sale or recently sold.