
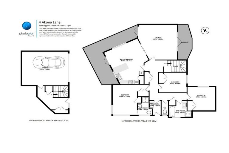
4 Akona Lane, Hamilton East, Hamilton, 3216 is a Residential property built in 1999 with 3 bedrooms, 2 bathrooms and 2 parking spaces. The property is estimated to be valued in the range of $800,000 to $900,000.
The property last sold on 15 November 2015 for $480,000. It was sold by Monarch Real Estate Ltd Hillcrest, and took 17 days to sell. On 1 September 2024, 4 Akona Lane, Hamilton East, Hamilton, 3216 had a Rating Valuation with a Capital Value of $890,000, Land Value of $390,000 and Improvement Value of $500,000.
| Date | Type | Price | Agent/Agency |
|---|---|---|---|
| 9 Nov 2023 | BY NEGOTIATION | Price Not Disclosed | Tony Godden of Lugtons Limited, (Licensed: Reaa 2008) |
| 2 Oct 2020 | Rented | $580 | Nic Elliottyson of Lodge City Rentals Ltd, (Licensed: Reaa 2008) |
| 15 Nov 2015 | SOLD | $480,000 | Mark Edmondson of Monarch Real Estate Ltd Hillcrest |
| 30 Oct 2015 | ASKING PRICE | $475,000 | Mark Edmondson of Monarch Real Estate Ltd Hillcrest |
| 21 Oct 2009 | SOLD | $405,000 | |
| 23 Mar 2006 | DEADLINE PRIVATE TREATY | $349,000 | Terry Ryan of First National Lugton |
| 16 Aug 2005 | SOLD | $337,000 | Terry Ryan of First National Lugton |
| 7 Jul 2005 | DEADLINE PRIVATE TREATY | $349,000 | Terry Ryan of First National Lugton |
Lot 7 Deposited Plan South Auckland 70374
There are no similar properties in the area that are listed for sale or recently sold.