1 of 19Aug 25
Loading...

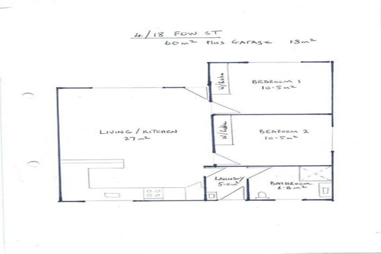
4/18 Fow Street Hamilton Central, 3204


4/18 Fow Street , Hamilton Central, 3204
bed2
bathroom4
car4
land1515 m2
floor280 m2
Property Type
Residential
Year Built
1965
Last Sold on 13 May 2015 for $785,000
Settlement Date
-
Sold By
Lugtons Real Estate
Settlement Date
-
Sold By
Lugtons Real Estate

Estimated Value Range  


An estimate of value is not currently available for this property. There could be insufficient property information or recent sales data. The property could be out of scope (e.g. non-residential, highly unique, rural) or the estimate cannot be determined with high enough confidence.

About 4/18 Fow Street, Hamilton Central, Hamilton, 3204

4/18 Fow Street, Hamilton Central, Hamilton, 3204 is a Residential property built in 1965 with 2 bedrooms, 4 bathrooms and 4 parking spaces. Due to insufficient data, the value of the property cannot be estimated.

The property last sold on 13 May 2015 for $785,000. It was sold by Lugtons Real Estate, and took 23 days to sell. On 1 September 2024, 4/18 Fow Street, Hamilton Central, Hamilton, 3204 had a Rating Valuation with a Capital Value of $1,750,000, Land Value of $1,450,000 and Improvement Value of $300,000.

Property History

DateTypePriceAgent/Agency
27 Aug 2025Rented$450Myrent.Co.Nz of Myrent.Co.NZ Ltd
9 May 2025Rented$450Myrent.Co.Nz of Myrent.Co.NZ Ltd
26 Oct 2024Rented$350Myrent.Co.Nz of Myrent.Co.NZ Ltd
7 May 2020Rented$350
13 May 2015SOLD$785,000Terry Ryan of Lugtons Real Estate
21 Apr 2015AUCTIONPrice Not DisclosedTerry Ryan of Lugtons Real Estate
23 Jul 1996SOLD$285,000
Present Day
27 Aug
2025
Listed for Rent - Last price at $450 per week
Listed by Myrent.Co.Nz of Myrent.Co.NZ Ltd
9 May
2025
Listed for Rent - Last price at $450 per week
Listed by Myrent.Co.Nz of Myrent.Co.NZ Ltd
26 Oct
2024
Listed for Rent - Last price at $350 per week
Listed by Myrent.Co.Nz of Myrent.Co.NZ Ltd
7 May
2020
Listed for Rent - Last price at $350 per week
13 May
2015
Sold for $785,000
10 years 10 months 25 days
Sold by Terry Ryan of Lugtons Real Estate
21 Apr
2015
Auction — Price Not Disclosed
Listed by Terry Ryan of Lugtons Real Estate
23 Jul
1996
Sold for $285,000
29 years 8 months 15 days
1965
Property Built

Commute Calculator

-
-
-
-

Rating Valuation

Capital Value
$1,750,000
Land Value
$1,450,000
Improvement Value
$300,000
Legal Description(s)

Lot 2 Deposited Plan South Auckland 74897

Valuation Date
01-09-2024
Valuation Reference
4165/71900

Additional Information

Roof Construction
Steel/G-Iron
Zone
Residential Zone H, 9H
Units of Use
4
Wall Construction
Brick
Maori Land
No
Territorial Authority
Hamilton City
Land Use
Multi-unit

Suburb Insights

Comparable Properties

There are no similar properties in the area that are listed for sale or recently sold.