
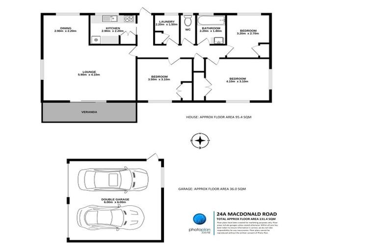
24a Macdonald Road, Glenview, Hamilton, 3206 is a Residential property built in 1985 with 3 bedrooms, 1 bathroom and 1 parking space. The property is estimated to be valued in the range of $600,000 to $650,000.
The property last sold on 22 January 2026 for an unknown price. It was sold by Lugtons Limited, (Licensed: Reaa 2008), and took 60 days to sell. On 1 September 2024, 24a Macdonald Road, Glenview, Hamilton, 3206 had a Rating Valuation with a Capital Value of $580,000, Land Value of $320,000 and Improvement Value of $260,000.
| Date | Type | Price | Agent/Agency |
|---|---|---|---|
| 22 Jan 2026 | $0 | Pending Settlement Advice | |
| 24 Nov 2025 | ASKING PRICE | $609,000 | Abbie Naylor of Lugtons Limited, (Licensed: Reaa 2008) |
| 31 Mar 2023 | SOLD | $575,000 | Dayi Liu of Lugtons Ltd, (Licensed: Reaa 2008) |
| 2 Mar 2023 | ASKING PRICE | $579,000 | Jack Ramasamy of Lugtons Ltd, (Licensed: Reaa 2008) |
| 29 Mar 2016 | SOLD | $425,000 | Craig Annandale of Lodge Real Estate Ltd |
| 5 Mar 2016 | ASKING PRICE | Price Not Disclosed | Craig Annandale of Lodge Real Estate Ltd |
| 8 Mar 2012 | ASKING PRICE | $262,000 | Diana-Crystal Chen of Lugtons Real Estate Ltd |
| 21 Apr 2007 | DEADLINE PRIVATE TREATY | $315,000 | Robina Smith of Lodge Real Estate |
| 14 Feb 2006 | SOLD | $247,000 | Joe Panettiere of Lodge Real Estate |
| 10 Dec 2005 | DEADLINE PRIVATE TREATY | $260,000 | Joe Panettiere of Lodge Real Estate |
| 11 Apr 2002 | SOLD | $150,000 | |
| 8 Aug 1986 | SOLD | $10,500 |
Flat B Deposited Plan South Auckland 48647 and Garage C Deposited Plan South Auckland 41514
There are no similar properties in the area that are listed for sale or recently sold.