
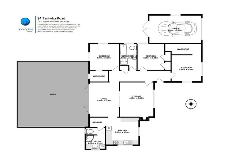
24 Taniwha Street, Frankton, Hamilton, 3204 is a Residential property built in 1951 with 3 bedrooms, 2 bathrooms and 1 parking space. The property is estimated to be valued in the range of $750,000 to $800,000.
The property last sold on 28 February 2024 for $740,000. It was sold by Lugtons Limited, (Licensed: Reaa 2008), and took 14 days to sell. On 1 September 2024, 24 Taniwha Street, Frankton, Hamilton, 3204 had a Rating Valuation with a Capital Value of $720,000, Land Value of $590,000 and Improvement Value of $130,000.
| Date | Type | Price | Agent/Agency |
|---|---|---|---|
| 28 Feb 2024 | SOLD | $740,000 | |
| 15 Feb 2024 | BY NEGOTIATION | Price Not Disclosed | Heather Whyte of Lugtons Limited, (Licensed: Reaa 2008) |
| 7 May 2015 | SOLD | $349,500 | |
| 17 Mar 2013 | SOLD | $320,000 | David Hillman of Lodge Real Estate Ltd |
| 7 Jan 2013 | ASKING PRICE | $345,000 | David Hillman of Lodge Real Estate Ltd |
| 3 Dec 1999 | SOLD | $190,000 |
Lot 2 Deposited Plan 461090
There are no similar properties in the area that are listed for sale or recently sold.