
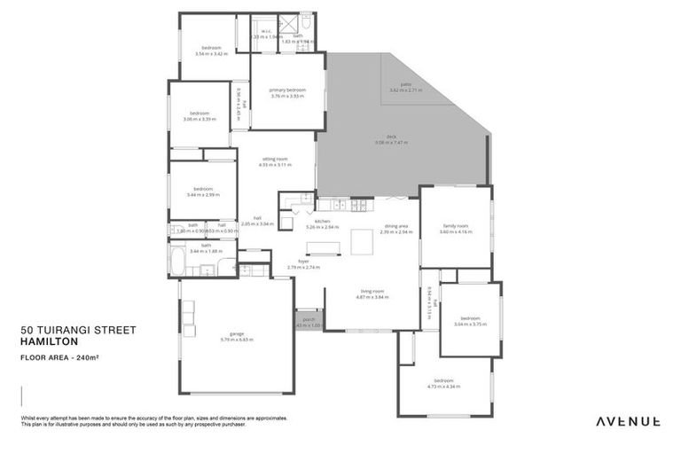
50 Tuirangi Street, Flagstaff, Hamilton, 3210 is a Residential property built in 2001 with 4 bedrooms, 2 bathrooms and 2 parking spaces. The property is estimated to be valued in the range of $1,100,000 to $1,200,000.
The property last sold on 24 March 2026 for an unknown price. It was sold by Lodge Real Estate, (Licensed: Reaa 2008), and took 43 days to sell. On 1 September 2024, 50 Tuirangi Street, Flagstaff, Hamilton, 3210 had a Rating Valuation with a Capital Value of $1,075,000, Land Value of $550,000 and Improvement Value of $525,000.
| Date | Type | Price | Agent/Agency |
|---|---|---|---|
| 24 Mar 2026 | $1,160,000 | Pending Settlement Advice | |
| 10 Feb 2026 | ASKING PRICE | $1,179,000 | Al-Fayed Khan of Lodge Real Estate, (Licensed: Reaa 2008) |
| 23 Aug 2000 | SOLD | $62,000 |
Lot 27 Deposited Plan South Auckland 87863
There are no similar properties in the area that are listed for sale or recently sold.