
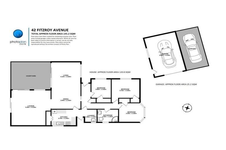
42 Fitzroy Avenue, Fitzroy, Hamilton, 3206 is a Residential property built in 1973 with 3 bedrooms, 1 bathroom and 1 parking space. The property is estimated to be valued in the range of $700,000 to $750,000.
The property last sold on 10 March 2023 for $710,000. It was sold by Lugtons Limited, (Licensed: Reaa 2008), and took 30 days to sell. On 1 September 2024, 42 Fitzroy Avenue, Fitzroy, Hamilton, 3206 had a Rating Valuation with a Capital Value of $700,000, Land Value of $485,000 and Improvement Value of $215,000.
| Date | Type | Price | Agent/Agency |
|---|---|---|---|
| 10 Mar 2023 | SOLD | $710,000 | Q Lu of Lugtons Limited, (Licensed: Reaa 2008) |
| 9 Feb 2023 | BY NEGOTIATION | Price Not Disclosed | Q Lu of Lugtons Limited, (Licensed: Reaa 2008) |
| 15 Jun 1997 | SOLD | $155,000 | |
| 30 Mar 1987 | SOLD | $87,000 | |
| 15 Nov 1986 | SOLD | $84,000 | |
| 21 Oct 1982 | SOLD | $62,250 |
Lot 19 Deposited Plan South Auckland 13304
There are no similar properties in the area that are listed for sale or recently sold.