
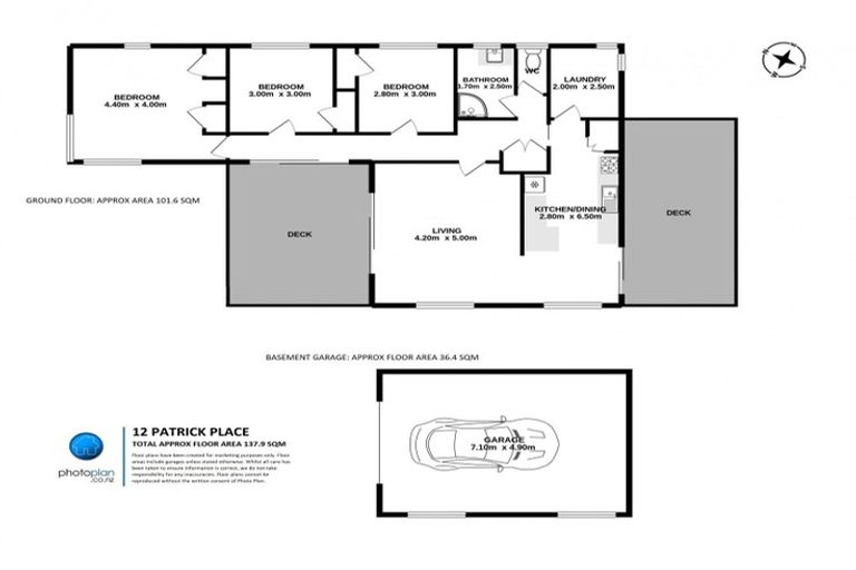
12 Patrick Place, Fitzroy, Hamilton, 3206 is a Residential property built in 1973 with 3 bedrooms, 1 bathroom and 1 parking space. The property is estimated to be valued in the range of $700,000 to $750,000.
The property last sold on 19 November 2020 for $710,000. On 1 September 2024, 12 Patrick Place, Fitzroy, Hamilton, 3206 had a Rating Valuation with a Capital Value of $690,000, Land Value of $455,000 and Improvement Value of $235,000.
| Date | Type | Price | Agent/Agency |
|---|---|---|---|
| 19 Nov 2020 | SOLD | $710,000 | |
| 15 May 2004 | SOLD | $193,500 | Joy O'Brien of Century 21 Geo Boyes |
| 25 Feb 2004 | DEADLINE PRIVATE TREATY | $199,000 | Joy O'Brien of Century 21 Geo Boyes |
| 16 Dec 1983 | SOLD | $66,500 |
Lot 66 Deposited Plan South Auckland 9826
There are no similar properties in the area that are listed for sale or recently sold.