
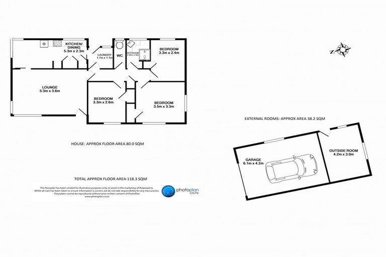
50 Powells Road, Fairview Downs, Hamilton, 3214 is a Residential property built in 1964 with 3 bedrooms, 1 bathroom and 1 parking space. The property is estimated to be valued in the range of $650,000 to $700,000.
The property last sold on 29 November 2021 for $765,000. It was sold by Lugtons Limited. On 1 September 2024, 50 Powells Road, Fairview Downs, Hamilton, 3214 had a Rating Valuation with a Capital Value of $660,000, Land Value of $430,000 and Improvement Value of $230,000.
| Date | Type | Price | Agent/Agency |
|---|---|---|---|
| 29 Nov 2021 | SOLD | $765,000 | Aman Singh of Lugtons Limited |
| 29 Nov 2021 | SOLD | $765,000 | Aman Singh of Lugtons Limited |
| 21 Oct 2021 | BY NEGOTIATION | Price Not Disclosed | Aman Singh of Lugtons Limited |
| 21 Oct 2021 | BY NEGOTIATION | Price Not Disclosed | Aman Singh of Lugtons Limited |
| 8 Jun 2018 | BY NEGOTIATION | Price Not Disclosed | Jono Ng of Lugton's Ltd City Licensed: Reaa 2008 |
| 2 May 2016 | SOLD | $406,000 | Tina Cuthers of Lugtons Real Estate |
| 12 Apr 2016 | ASKING PRICE | $419,000 | Tina Cuthers of Lugtons Real Estate |
| 31 Jul 2011 | SOLD | $250,000 | |
| 22 Oct 2010 | ASKING PRICE | $269,000 | |
| 25 Jan 1985 | SOLD | $56,000 |
Lot 10 Deposited Plan South Auckland 8744
There are no similar properties in the area that are listed for sale or recently sold.