
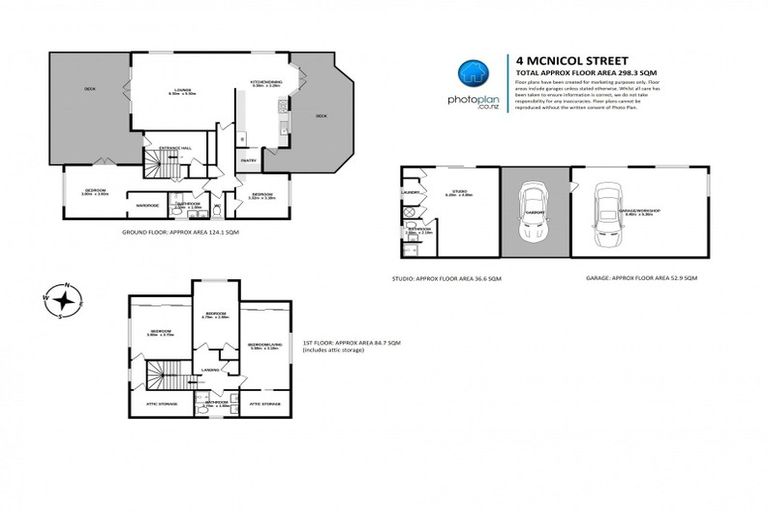
4 Mcnicol Street, Fairfield, Hamilton, 3214 is a Residential property built in 1960 with 5 bedrooms, 3 bathrooms and 4 parking spaces. The property is estimated to be valued in the range of $1,200,000 to $1,300,000.
The property last sold on 30 March 2022 for $1,487,000. It was sold by Lugtons Limited, and took 21 days to sell. On 1 September 2024, 4 Mcnicol Street, Fairfield, Hamilton, 3214 had a Rating Valuation with a Capital Value of $1,200,000, Land Value of $680,000 and Improvement Value of $520,000.
| Date | Type | Price | Agent/Agency |
|---|---|---|---|
| 30 Mar 2022 | SOLD | $1,487,000 | Deborah Steel of Lugtons Limited |
| 10 Mar 2022 | UNKNOWN | Price Not Disclosed | Deborah Steel of Lugtons Limited |
| 6 Feb 2015 | ASKING PRICE | Price Not Disclosed | |
| 31 Oct 2014 | AUCTION | Price Not Disclosed | Collins Glenn of Lodge Real Estate (Hamilton) Ltd City |
| 20 May 2009 | SOLD | $512,000 | Brenda Beale of Lodge Real Estate |
| 2 May 2009 | AUCTION | Price Not Disclosed | Brenda Beale of Lodge Real Estate |
| 15 Oct 1983 | SOLD | $100,000 |
Lot 1 Deposited Plan South Auckland 28007
There are no similar properties in the area that are listed for sale or recently sold.