
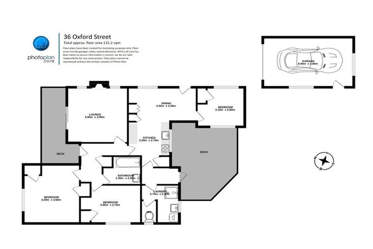
36 Oxford Street, Fairfield, Hamilton, 3214 is a Residential property built in 1952 with 3 bedrooms, 1 bathroom and 1 parking space. The property is estimated to be valued in the range of $700,000 to $750,000.
The property last sold on 12 March 2025 for $740,000. It was sold by Harcourts Hamilton Central City, and took 8 days to sell. On 1 September 2024, 36 Oxford Street, Fairfield, Hamilton, 3214 had a Rating Valuation with a Capital Value of $640,000, Land Value of $465,000 and Improvement Value of $175,000.
| Date | Type | Price | Agent/Agency |
|---|---|---|---|
| 12 Mar 2025 | SOLD | $740,000 | |
| 5 Mar 2025 | BY NEGOTIATION | Price Not Disclosed | Tony Kerapa of Harcourts Hamilton Central City |
| 31 Oct 2024 | SOLD | $640,000 | |
| 8 Oct 2024 | ASKING PRICE | Price Not Disclosed | Lisa Sigley of Monarch Real Estate Ltd Hamilton, (Licensed: Reaa 2008) |
Lot 36 Deposited Plan 15202
There are no similar properties in the area that are listed for sale or recently sold.