
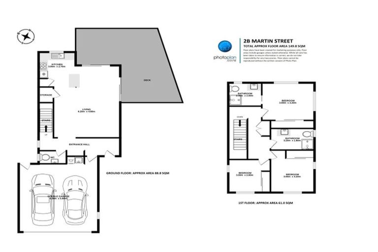
2b Martin Street, Fairfield, Hamilton, 3214 is a Residential property built in 2020 with 3 bedrooms, 2 bathrooms and 2 parking spaces. The property is estimated to be valued in the range of $900,000 to $1,000,000.
The property last sold on 29 October 2020 for $880,000. It was sold by Lugtons Ltd, (Licensed: Reaa 2008), and took 7 days to sell. On 1 September 2024, 2b Martin Street, Fairfield, Hamilton, 3214 had a Rating Valuation with a Capital Value of $940,000, Land Value of $360,000 and Improvement Value of $580,000.
| Date | Type | Price | Agent/Agency |
|---|---|---|---|
| 28 Jan 2023 | ASKING PRICE | $975,000 | Kerry Hopper of Lugtons Ltd, (Licensed: Reaa 2008) |
| 29 Oct 2020 | SOLD | $880,000 | Kerry Hopper of Lugtons Ltd, (Licensed: Reaa 2008) |
| 22 Aug 2020 | ASKING PRICE | $890,000 | Kerry Hopper of Lugtons Ltd, (Licensed: Reaa 2008) |
Lot 3 Deposited Plan 546864
There are no similar properties in the area that are listed for sale or recently sold.