
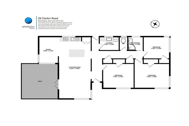
26 Clarkin Road, Fairfield, Hamilton, 3214 is a Residential property built in 1949 with 3 bedrooms, 1 bathroom and 1 parking space. The property is estimated to be valued in the range of $700,000 to $750,000.
The property last sold on 5 February 2024 for $719,000. It was sold by Lugtons Chartwell (River Road) Ltd, (Licensed: Reaa 2008), and took 11 days to sell. On 1 September 2024, 26 Clarkin Road, Fairfield, Hamilton, 3214 had a Rating Valuation with a Capital Value of $660,000, Land Value of $435,000 and Improvement Value of $225,000.
| Date | Type | Price | Agent/Agency |
|---|---|---|---|
| 5 Feb 2024 | SOLD | $719,000 | |
| 26 Jan 2024 | ASKING PRICE | $719,000 | Melissa Wilton of Lugtons Chartwell (River Road) Ltd, (Licensed: Reaa 2008) |
| 30 Nov 2018 | SOLD | $475,000 | Alastair Ferguson of Harcourts Hamilton Central City |
| 21 Nov 2018 | ASKING PRICE | $479,000 | Alastair Ferguson of Harcourts Hamilton Central City |
| 27 Oct 2015 | SOLD | $408,000 | Scott Malins of Monarch Real Estate Ltd Harcourts, Hamilton |
| 14 Oct 2015 | AUCTION | Price Not Disclosed | Scott Malins of Monarch Real Estate Ltd Harcourts, Hamilton |
| 18 May 2012 | SOLD | $273,000 | Tony Kerapa of Harcourts Monarch Glenview |
| 5 Oct 2011 | DEADLINE PRIVATE TREATY | $289,000 | Tony Kerapa of Harcourts Monarch Glenview |
| 30 Mar 2006 | SOLD | $250,000 | Barbara Fletcher of Harcourts Monarch Real Estate Ltd |
| 17 Mar 2006 | AUCTION | Price Not Disclosed | Barbara Fletcher of Harcourts Monarch Real Estate Ltd |
| 13 Nov 1992 | SOLD | $88,000 | |
| 4 Apr 1989 | SOLD | $85,000 |
Lot 1 Deposited Plan 358746
There are no similar properties in the area that are listed for sale or recently sold.