
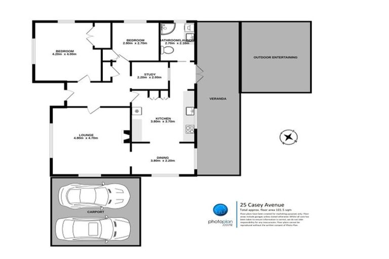
25 Casey Avenue, Fairfield, Hamilton, 3214 is a Residential property built in 1939 with 2 bedrooms, 1 bathroom and 2 parking spaces. The property is estimated to be valued in the range of $800,000 to $900,000.
The property last sold on 21 July 2025 for $785,000. It was sold by Lodge Real Estate, (Licensed: Reaa 2008), and took 15 days to sell. On 1 September 2024, 25 Casey Avenue, Fairfield, Hamilton, 3214 had a Rating Valuation with a Capital Value of $760,000, Land Value of $430,000 and Improvement Value of $330,000.
| Date | Type | Price | Agent/Agency |
|---|---|---|---|
| 21 Jul 2025 | SOLD | $785,000 | |
| 7 Jul 2025 | ASKING PRICE | $785,000 | Stacey Green of Lodge Real Estate, (Licensed: Reaa 2008) |
| 18 Feb 2024 | SOLD | $780,000 | |
| 26 Jan 2024 | ASKING PRICE | $779,000 | Melissa Wilton of Lugtons Chartwell (River Road) Ltd, (Licensed: Reaa 2008) |
| 10 Dec 2015 | SOLD | $435,000 | |
| 15 Dec 2013 | SOLD | $385,000 | Greg Sheppard of Lodge Real Estate Ltd |
| 19 Nov 2013 | AUCTION | Price Not Disclosed | Greg Sheppard of Lodge Real Estate Ltd |
| 27 Nov 2009 | SOLD | $356,000 | |
| 21 Nov 2009 | ASKING PRICE | $359,000 | |
| 5 Dec 2007 | SOLD | $353,000 | Sonia Christison of Lodge Real Estate |
| 24 Nov 2007 | AUCTION | Price Not Disclosed | Sonia Christison of Lodge Real Estate |
| 13 May 2005 | DEADLINE PRIVATE TREATY | $277,000 | Monty McFarlane of Harcourts Monarch Real Estate Ltd |
| 12 May 2005 | SOLD | $275,000 | Monty McFarlane of Harcourts Monarch Real Estate Ltd |
| 21 Jan 2002 | SOLD | $163,000 | |
| 30 Nov 1997 | SOLD | $154,500 | |
| 8 Jul 1996 | SOLD | $146,000 | |
| 17 Dec 1993 | SOLD | $102,000 | |
| 27 Jan 1989 | SOLD | $70,000 | |
| 7 Jul 1987 | SOLD | $62,500 |
Flat A Deposited Plan South Auckland 46126
There are no similar properties in the area that are listed for sale or recently sold.