
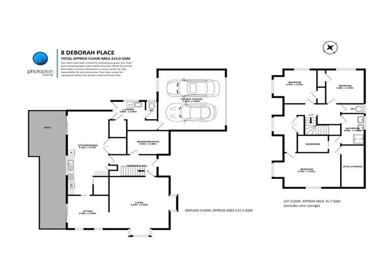
8 Deborah Place, Dinsdale, Hamilton, 3204 is a Residential property built in 1981 with 3 bedrooms, 1 bathroom and 2 parking spaces. The property is estimated to be valued in the range of $750,000 to $800,000.
The property last sold on 8 February 2017 for $555,000. On 1 September 2024, 8 Deborah Place, Dinsdale, Hamilton, 3204 had a Rating Valuation with a Capital Value of $750,000, Land Value of $435,000 and Improvement Value of $315,000.
| Date | Type | Price | Agent/Agency |
|---|---|---|---|
| 30 Mar 2023 | ASKING PRICE | $829,000 | Richard Hartles of Lugtons Limited, (Licensed: Reaa 2008) |
| 8 Feb 2017 | SOLD | $555,000 | |
| 15 Oct 1986 | SOLD | $146,000 | |
| 2 Mar 1984 | SOLD | $113,000 | |
| 30 Sep 1981 | SOLD | $15,500 |
Lot 7 Deposited Plan South Auckland 29586
There are no similar properties in the area that are listed for sale or recently sold.