
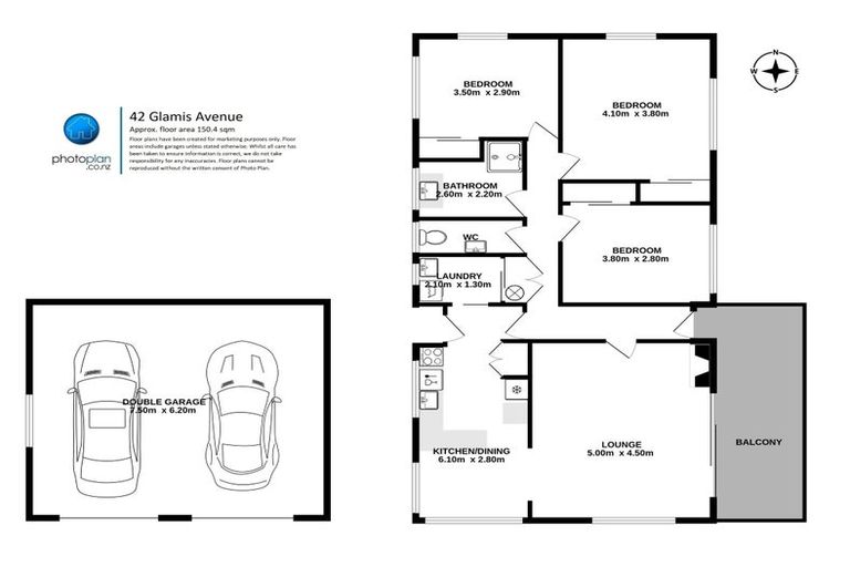
42 Glamis Avenue, Dinsdale, Hamilton, 3204 is a Residential property built in 1920 with 3 bedrooms, 1 bathroom and 1 parking space. The property is estimated to be valued in the range of $750,000 to $800,000.
The property last sold on 13 December 2025 for $740,000. It was sold by Monarch Real Estate Ltd Hamilton, (Licensed: Reaa 2008), and took 8 days to sell. On 1 September 2024, 42 Glamis Avenue, Dinsdale, Hamilton, 3204 had a Rating Valuation with a Capital Value of $710,000, Land Value of $430,000 and Improvement Value of $280,000.
| Date | Type | Price | Agent/Agency |
|---|---|---|---|
| 13 Dec 2025 | SOLD | $740,000 | |
| 6 Dec 2025 | BY NEGOTIATION | Price Not Disclosed | Lisa Sigley of Monarch Real Estate Ltd Hamilton, (Licensed: Reaa 2008) |
| 16 Jun 2018 | Rented | $425 | |
| 23 Nov 2004 | SOLD | $245,000 | Ken Lusby of Ray White Hamilton |
| 20 Nov 2004 | DEADLINE PRIVATE TREATY | $249,000 | Ken Lusby of Ray White Hamilton |
| 26 May 1999 | SOLD | $186,000 | |
| 3 Feb 1994 | SOLD | $145,000 | |
| 28 May 1990 | SOLD | $145,000 | |
| 27 Feb 1990 | SOLD | $150,000 | |
| 15 Jul 1988 | SOLD | $122,000 |
Lot 107 Deposited Plan South Auckland 17488
There are no similar properties in the area that are listed for sale or recently sold.