
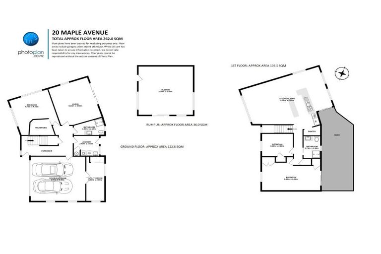
20 Maple Avenue, Dinsdale, Hamilton, 3204 is a Residential property built in 1910 with 4 bedrooms, 2 bathrooms and 3 parking spaces. The property is estimated to be valued in the range of $750,000 to $800,000.
The property last sold on 2 August 2023 for $835,000. On 1 September 2024, 20 Maple Avenue, Dinsdale, Hamilton, 3204 had a Rating Valuation with a Capital Value of $750,000, Land Value of $430,000 and Improvement Value of $320,000.
| Date | Type | Price | Agent/Agency |
|---|---|---|---|
| 2 Aug 2023 | SOLD | $835,000 | |
| 17 Apr 2023 | SOLD | $829,000 | Jamie Barakat of Lugtons Ltd, (Licensed: Reaa 2008) |
| 21 Feb 2023 | ASKING PRICE | $829,000 | Jamie Barakat of Lugtons Ltd, (Licensed: Reaa 2008) |
| 25 May 2005 | SOLD | $375,000 |
Lot 8 Deposited Plan South Auckland 18708
There are no similar properties in the area that are listed for sale or recently sold.