
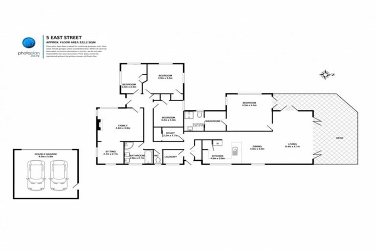
5 East Street, Claudelands, Hamilton, 3214 is a Residential property built in 1950 with 4 bedrooms, 2 bathrooms and 2 parking spaces. The property is estimated to be valued in the range of $1,000,000 to $1,100,000.
The property last sold on 22 May 2019 for $800,000. On 1 September 2024, 5 East Street, Claudelands, Hamilton, 3214 had a Rating Valuation with a Capital Value of $1,050,000, Land Value of $680,000 and Improvement Value of $370,000.
| Date | Type | Price | Agent/Agency |
|---|---|---|---|
| 22 May 2019 | SOLD | $800,000 | |
| 19 Nov 2015 | SOLD | $664,000 | John Dunn of Monarch Real Estate Ltd Harcourts, Chartwell |
| 4 Nov 2015 | AUCTION | Price Not Disclosed | John Dunn of Monarch Real Estate Ltd Harcourts, Chartwell |
| 23 Jun 2010 | SOLD | $562,500 | Jim Newman of Lugtons Real Estate |
| 22 May 2010 | AUCTION | Price Not Disclosed | Jim Newman of Lugtons Real Estate |
| 27 Sep 2005 | SOLD | $310,000 | Nick Dunckley of First National Lugton |
| 24 Sep 2005 | DEADLINE PRIVATE TREATY | $320,000 | Nick Dunckley of First National Lugton |
Lot 6 Deposited Plan 16306
There are no similar properties in the area that are listed for sale or recently sold.