
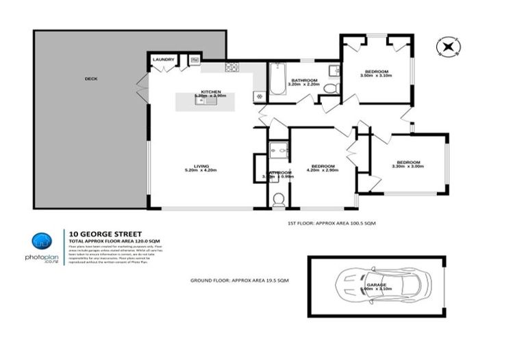
10 George Street, Claudelands, Hamilton, 3214 is a Residential property built in 1945 with 3 bedrooms, 2 bathrooms and 1 parking space. The property is estimated to be valued in the range of $900,000 to $1,000,000.
The property last sold on 20 April 2023 for $887,500. It was sold by Lugtons Ltd, (Licensed: Reaa 2008), and took 42 days to sell. On 1 September 2024, 10 George Street, Claudelands, Hamilton, 3214 had a Rating Valuation with a Capital Value of $910,000, Land Value of $560,000 and Improvement Value of $350,000.
| Date | Type | Price | Agent/Agency |
|---|---|---|---|
| 20 Apr 2023 | SOLD | $887,500 | Jamie Barakat of Lugtons Ltd, (Licensed: Reaa 2008) |
| 10 Mar 2023 | ASKING PRICE | $899,000 | Jamie Barakat of Lugtons Ltd, (Licensed: Reaa 2008) |
| 5 Apr 2016 | SOLD | $670,000 | Libby Buchanan of Lugton's Ltd River RD |
| 23 Mar 2016 | AUCTION | Price Not Disclosed | Libby Buchanan of Lugton's Ltd River RD |
| 27 May 2015 | SOLD | $501,000 | Libby Buchanan of Lugton's Ltd River RD |
| 6 May 2015 | AUCTION | Price Not Disclosed | Libby Buchanan of Lugton's Ltd River RD |
| 18 Sep 2013 | SOLD | $460,000 | Glenn Collins of Lodge Real Estate Ltd |
| 28 Aug 2013 | AUCTION | Price Not Disclosed | Glenn Collins of Lodge Real Estate Ltd |
| 19 Feb 2011 | ASKING PRICE | $449,000 | |
| 20 Jun 2008 | DEADLINE PRIVATE TREATY | $479,000 | Kim Engberg of Harcourts Monarch Real Estate Ltd |
| 8 Mar 2008 | AUCTION | Price Not Disclosed | Sonia Christison of Lodge Real Estate Ltd |
| 7 Mar 2007 | DEADLINE PRIVATE TREATY | $375,000 | Terry Ryan of Lugton's |
| 21 Jun 2006 | SOLD | $337,000 | Francie Brierley of Lugton's |
| 14 Jun 2006 | DEADLINE PRIVATE TREATY | Price Not Disclosed | Francie Brierley of Lugton's |
| 12 Jun 1996 | SOLD | $172,000 | |
| 16 Jun 1995 | SOLD | $141,000 | |
| 10 Sep 1993 | SOLD | $110,000 | |
| 1 Nov 1991 | SOLD | $102,000 |
Lot 1 Deposited Plan 32442
There are no similar properties in the area that are listed for sale or recently sold.