
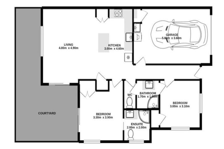
3/34 Rutherford Street, Chedworth, Hamilton, 3210 is a Residential property built in 2010 with 2 bedrooms, 2 bathrooms and 1 parking space. The property is estimated to be valued in the range of $700,000 to $750,000.
The property last sold on 5 December 2017 for $538,000. On 1 September 2024, 3/34 Rutherford Street, Chedworth, Hamilton, 3210 had a Rating Valuation with a Capital Value of $710,000, Land Value of $385,000 and Improvement Value of $325,000.
| Date | Type | Price | Agent/Agency |
|---|---|---|---|
| 11 Oct 2023 | Rented | $550 | Cherie Osbaldiston of Waikato Real Estate |
| 21 Sep 2022 | Rented | $540 | Sharon Smith of Waikato Real Estate |
| 5 Dec 2017 | SOLD | $538,000 |
Lot 3 Deposited Plan 513055
There are no similar properties in the area that are listed for sale or recently sold.