
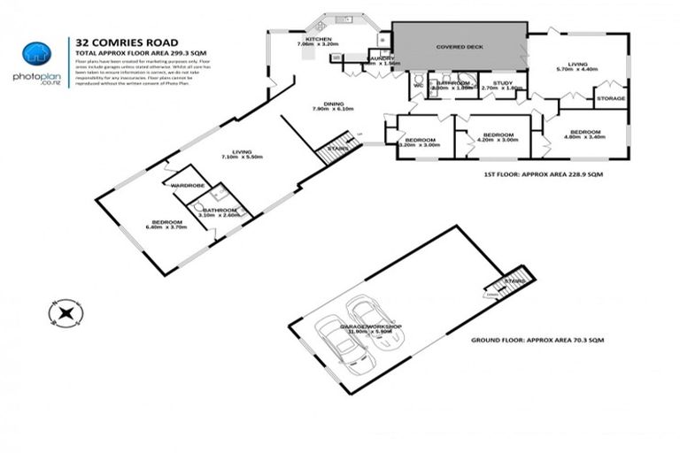
32 Comries Road, Chartwell, Hamilton, 3210 is a Residential property built in 1964 with 5 bedrooms, 2 bathrooms and 2 parking spaces. The property is estimated to be valued in the range of $1,200,000 to $1,300,000.
The property last sold on 21 July 2021 for $1,465,000. On 1 September 2024, 32 Comries Road, Chartwell, Hamilton, 3210 had a Rating Valuation with a Capital Value of $1,225,000, Land Value of $460,000 and Improvement Value of $765,000.
| Date | Type | Price | Agent/Agency |
|---|---|---|---|
| 21 Jul 2021 | SOLD | $1,465,000 | |
| 20 Mar 2013 | SOLD | $558,000 | Sue Hall of Eves Realty Hamilton |
| 21 Feb 2013 | AUCTION | Price Not Disclosed | Sue Hall of Eves Realty Hamilton |
| 12 Dec 1996 | SOLD | $227,000 |
Lot 16 Deposited Plan South Auckland 5020
There are no similar properties in the area that are listed for sale or recently sold.