
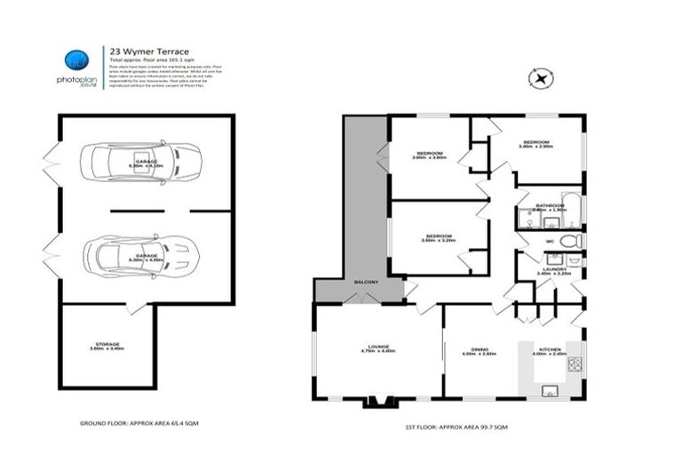
23 Wymer Terrace, Chartwell, Hamilton, 3210 is a Residential property built in 1962 with 3 bedrooms, 1 bathroom and 2 parking spaces. The property is estimated to be valued in the range of $900,000 to $1,000,000.
The property last sold on 26 March 2024 for $920,000. It was sold by Lugtons Chartwell (River Road) Ltd, (Licensed: Reaa 2008), and took 29 days to sell. On 1 September 2024, 23 Wymer Terrace, Chartwell, Hamilton, 3210 had a Rating Valuation with a Capital Value of $940,000, Land Value of $800,000 and Improvement Value of $140,000.
| Date | Type | Price | Agent/Agency |
|---|---|---|---|
| 26 Mar 2024 | SOLD | $920,000 | |
| 27 Feb 2024 | DEADLINE PRIVATE TREATY | Price Not Disclosed | Melissa Wilton of Lugtons Chartwell (River Road) Ltd, (Licensed: Reaa 2008) |
Lot 12 Deposited Plan South Auckland 5738
There are no similar properties in the area that are listed for sale or recently sold.