
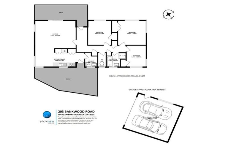
203 Bankwood Road, Chartwell, Hamilton, 3210 is a Residential property built in 1965 with 3 bedrooms, 1 bathroom and 2 parking spaces. The property is estimated to be valued in the range of $700,000 to $750,000.
The property last sold on 20 February 2026 for an unknown price. It was sold by Harcourts Hamilton Hillcrest. On 1 September 2024, 203 Bankwood Road, Chartwell, Hamilton, 3210 had a Rating Valuation with a Capital Value of $700,000, Land Value of $405,000 and Improvement Value of $295,000.
| Date | Type | Price | Agent/Agency |
|---|---|---|---|
| 20 Feb 2026 | $771,001 | Pending Settlement Advice | |
| 2 Feb 2026 | BY NEGOTIATION | Price Not Disclosed | Nathan Haman of Monarch Real Estate Ltd Hillcrest, (Licensed: Reaa 2008) |
| 20 Nov 2023 | Rented | $590 | Christopher Neal of Monarch Realty Ltd |
| 24 Aug 2023 | SOLD | $738,000 | |
| 18 Aug 2023 | ASKING PRICE | $715,000 | Jamie Barakat of Lugtons Ltd, (Licensed: Reaa 2008) |
| 5 Aug 2000 | SOLD | $159,000 | |
| 5 Jul 1999 | SOLD | $159,000 | |
| 18 Nov 1994 | SOLD | $127,000 |
Lot 52 Deposited Plan South Auckland 7649
There are no similar properties in the area that are listed for sale or recently sold.