
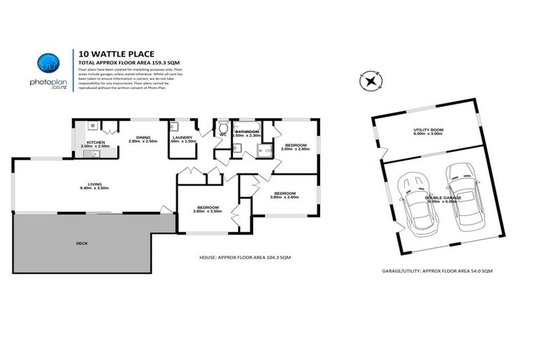
10 Wattle Place, Chartwell, Hamilton, 3210 is a Residential property built in 1979 with 3 bedrooms, 1 bathroom and 2 parking spaces. The property is estimated to be valued in the range of $750,000 to $800,000.
The property last sold on 22 June 2023 for $725,000. It was sold by Lugtons Limited. On 1 September 2024, 10 Wattle Place, Chartwell, Hamilton, 3210 had a Rating Valuation with a Capital Value of $700,000, Land Value of $450,000 and Improvement Value of $250,000.
| Date | Type | Price | Agent/Agency |
|---|---|---|---|
| 22 Jun 2023 | SOLD | $725,000 | Brooke Devcich of Lugtons Limited |
| 27 Oct 2022 | ASKING PRICE | $745,000 | Brooke Devcich of Lugtons Limited, (Licensed: Reaa 2008) |
| 13 Nov 2010 | SOLD | $282,500 | Nathan Haman of Harcourts Monarch Realty |
| 14 May 2010 | DEADLINE PRIVATE TREATY | $299,000 | Nathan Haman of Harcourts Monarch Realty |
| 21 Dec 1992 | SOLD | $116,000 |
Lot 16 Deposited Plan South Auckland 26462
There are no similar properties in the area that are listed for sale or recently sold.