
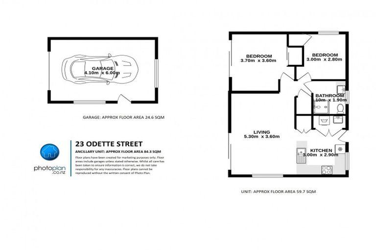
23 Odette Street, Bader, Hamilton, 3206 is a Residential property built in 1910 with 5 bedrooms, 2 bathrooms and 1 parking space. The property is estimated to be valued in the range of $800,000 to $900,000.
The property last sold on 27 October 2021 for $1,035,000. It was sold by Lugtons Limited. On 1 September 2024, 23 Odette Street, Bader, Hamilton, 3206 had a Rating Valuation with a Capital Value of $840,000, Land Value of $600,000 and Improvement Value of $240,000.
| Date | Type | Price | Agent/Agency |
|---|---|---|---|
| 8 Apr 2024 | Rented | $485 | Britney Ross of Waikato Real Estate |
| 6 Oct 2023 | Rented | $485 | Britney Laurence of Waikato Real Estate |
| 27 Oct 2021 | SOLD | $1,035,000 | Babak Paymani of Lugtons Limited |
| 7 Oct 2021 | AUCTION | Price Not Disclosed | Daljit Singh of Lugtons Limited, (Licensed: Reaa 2008) |
| 15 Feb 2005 | SOLD | $180,000 | |
| 22 Dec 1986 | SOLD | $73,000 |
Lot 93 Deposited Plan South Auckland 3023
There are no similar properties in the area that are listed for sale or recently sold.