
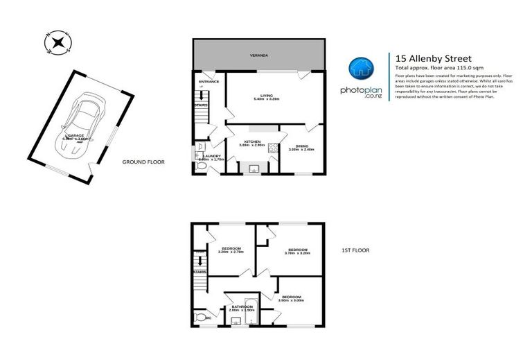
15 Allenby Street, Bader, Hamilton, 3206 is a Residential property built in 1950 with 3 bedrooms, 1 bathroom and 1 parking space. The property is estimated to be valued in the range of $500,000 to $550,000.
The property last sold on 25 September 2025 for $430,000. It was sold by Lodge Real Estate, (Licensed: Reaa 2008). On 1 September 2024, 15 Allenby Street, Bader, Hamilton, 3206 had a Rating Valuation with a Capital Value of $500,000, Land Value of $370,000 and Improvement Value of $130,000.
| Date | Type | Price | Agent/Agency |
|---|---|---|---|
| 25 Sep 2025 | SOLD | $430,000 | |
| 31 Aug 2025 | BY NEGOTIATION | Price Not Disclosed | Heather Whyte of Lugtons Limited, (Licensed: Reaa 2008) |
| 18 Dec 2019 | Rented | $410 | Zack Cathcart of Lodge City Rentals Ltd, (Licensed: Reaa 2008) |
| 27 Sep 2003 | SOLD | $135,000 | |
| 16 Mar 1999 | SOLD | $95,000 |
Lot 336 Deposited Plan South Auckland 4960
There are no similar properties in the area that are listed for sale or recently sold.