
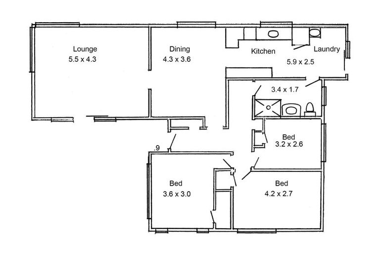
63 Terou Street, Manaia, 4612 is a Residential property built in 1961 with 3 bedrooms, 1 bathroom and 0 parking spaces. The property is estimated to be valued in the range of $375,000 to $400,000.
The property last sold on 11 February 2025 for $385,000. It took 25 days to sell. On 1 September 2024, 63 Terou Street, Manaia, 4612 had a Rating Valuation with a Capital Value of $320,000, Land Value of $100,000 and Improvement Value of $220,000.
| Date | Type | Price | Agent/Agency |
|---|---|---|---|
| 11 Feb 2025 | SOLD | $385,000 | |
| 18 Jan 2025 | ASKING PRICE | $385,000 |
Lot 2 Deposited Plan 610650
There are no similar properties in the area that are listed for sale or recently sold.