
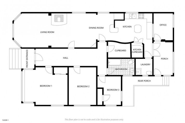
3 Victoria Street, Hawera, 4610 is a Residential property built in 1910 with 3 bedrooms, 1 bathroom and 2 parking spaces. The property is estimated to be valued in the range of $500,000 to $550,000.
The property last sold on 3 October 2025 for $493,473. On 1 September 2024, 3 Victoria Street, Hawera, 4610 had a Rating Valuation with a Capital Value of $445,000, Land Value of $190,000 and Improvement Value of $255,000.
| Date | Type | Price | Agent/Agency |
|---|---|---|---|
| 3 Oct 2025 | SOLD | $493,473 | |
| 8 Jan 2024 | BY NEGOTIATION | Price Not Disclosed | Hayley Shaw of First National Collective, (Licensed: Reaa 2008) |
| 26 Jan 2023 | ENQUIRIES OVER | $519,000 | Hayley Shaw of First National Collective, (Licensed: Reaa 2008) |
| 10 Sep 2021 | SOLD | $450,000 | Rebecca Bruce of Tall Poppy New Plymouth |
| 19 Aug 2021 | ENQUIRIES OVER | $445,000 | Rebecca Bruce of Tall Poppy New Plymouth |
| 2 Jun 2021 | ENQUIRIES OVER | $450,000 | Michelle Baya of Arizto, (Licensed: Reaa 2008) |
| 10 Feb 2016 | ASKING PRICE | $265,000 | Annette Rowe of Rowe Ratahi Realty Ltd Harcourts, Hawera |
| 16 Sep 2015 | TENDER | Price Not Disclosed | Jane Simonson of Tsb Bank Ltd Tsb Realty, New Plymouth |
| 29 Jan 2009 | SOLD | $200,000 | |
| 19 Sep 2005 | SOLD | $140,000 | |
| 9 Feb 2001 | SOLD | $65,000 |
Part Lot 1 Sub 5 Deposited Plan 1408
There are no similar properties in the area that are listed for sale or recently sold.