
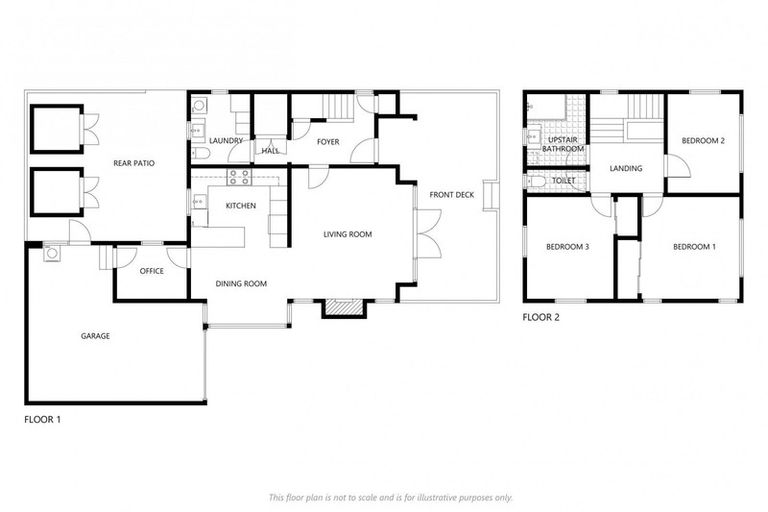
29 Fulford Street, New Plymouth, 4310 is a Residential property built in 1945 with 3 bedrooms, 1 bathroom and 1 parking space. The property is estimated to be valued in the range of $800,000 to $900,000.
The property last sold on 10 February 2022 for $950,000. It was sold by Tall Poppy New Plymouth, and took 17 days to sell. On 1 August 2025, 29 Fulford Street, New Plymouth, 4310 had a Rating Valuation with a Capital Value of $875,000, Land Value of $440,000 and Improvement Value of $435,000.
| Date | Type | Price | Agent/Agency |
|---|---|---|---|
| 10 Feb 2022 | SOLD | $950,000 | Dianne Douds of Tall Poppy New Plymouth |
| 25 Jan 2022 | ENQUIRIES OVER | $895,000 | Dianne Douds of Tall Poppy New Plymouth |
| 2 Oct 1997 | SOLD | $199,000 | |
| 25 Oct 1991 | SOLD | $126,500 |
Lot 2 Deposited Plan 5950
There are no similar properties in the area that are listed for sale or recently sold.