
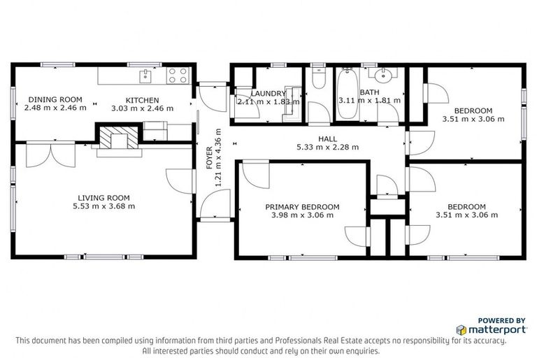
79 Awanui Street, Merrilands, New Plymouth, 4312 is a Residential property built in 1962 with 3 bedrooms, 1 bathroom and 1 parking space. The property is estimated to be valued in the range of $650,000 to $700,000.
The property last sold on 3 February 2022 for $675,000. It was sold by Professionals New Plymouth (Beaven Realty Ltd Mreinz), and took 10 days to sell. On 1 August 2025, 79 Awanui Street, Merrilands, New Plymouth, 4312 had a Rating Valuation with a Capital Value of $650,000, Land Value of $405,000 and Improvement Value of $245,000.
| Date | Type | Price | Agent/Agency |
|---|---|---|---|
| 3 Mar 2026 | ENQUIRIES OVER | $679,000 | Brooke Barrett of Professionals Real Estate (Beaven Realty Ltd), (Licensed: Reaa 2008) |
| 3 Feb 2022 | SOLD | $675,000 | Dillon Albers of Professionals New Plymouth (Beaven Realty Ltd Mreinz) |
| 25 Jan 2022 | ENQUIRIES OVER | $649,000 | Dillon Albers of Professionals New Plymouth (Beaven Realty Ltd Mreinz) |
| 25 Feb 2014 | SOLD | $302,000 | |
| 10 Aug 2004 | SOLD | $208,000 | |
| 12 Oct 1998 | SOLD | $84,000 |
Lot 12 Deposited Plan 7586
There are no similar properties in the area that are listed for sale or recently sold.