
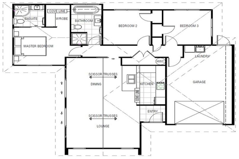
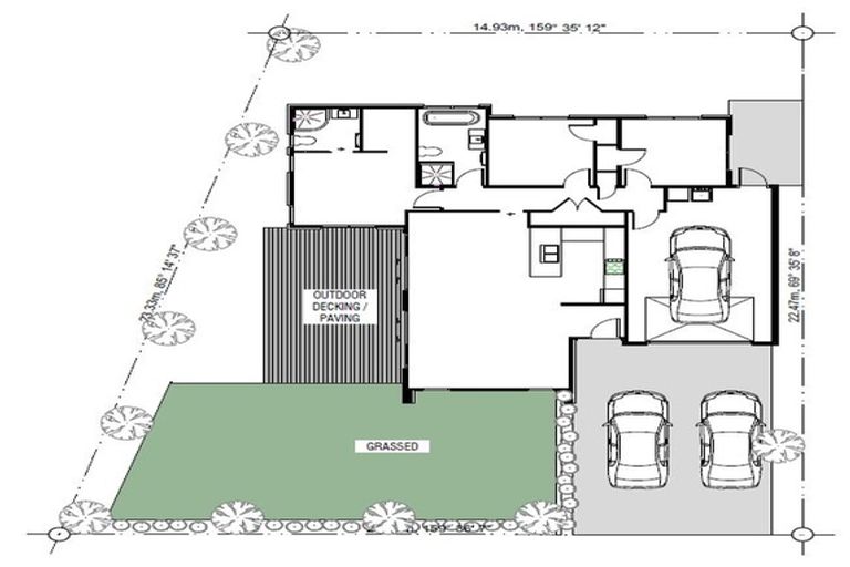
38a Wynyard Street, Bell Block, New Plymouth, 4312 is a Residential property built in 2023 with 3 bedrooms, 1 bathroom and 1 parking space. The property is estimated to be valued in the range of $750,000 to $800,000.
The property last sold on 22 October 2025 for $765,000. It took 7 days to sell. On 1 August 2025, 38a Wynyard Street, Bell Block, New Plymouth, 4312 had a Rating Valuation with a Capital Value of $780,000, Land Value of $285,000 and Improvement Value of $495,000.
| Date | Type | Price | Agent/Agency |
|---|---|---|---|
| 22 Oct 2025 | SOLD | $765,000 | |
| 15 Sep 2023 | Rented | $850 | |
| 1 Nov 2022 | SOLD | $330,000 | Jay Green of Harcourts Bell Block |
| 14 Jun 2022 | BY NEGOTIATION | Price Not Disclosed | Kimberley Markham of Harcourts Bell Block |
Lot 2 Deposited Plan 530932
There are no similar properties in the area that are listed for sale or recently sold.